For Sale 1,250,000€ - Luxury Villas Greece, Villas for Sale Greece
Beach Front Villa with Pool in Rhodes for Sale
A Rare Opportunity for Coastal Living
Beach Front Villa with Pool in Rhodes for sale is an exceptional real estate opportunity offering direct access to one of the most stunning sandy beaches of the island. Situated in a privileged beachfront location, this property combines elegance, comfort, and autonomy in one of the most desirable areas of Rhodes.
Prime Seaside Setting
Exceptional Location
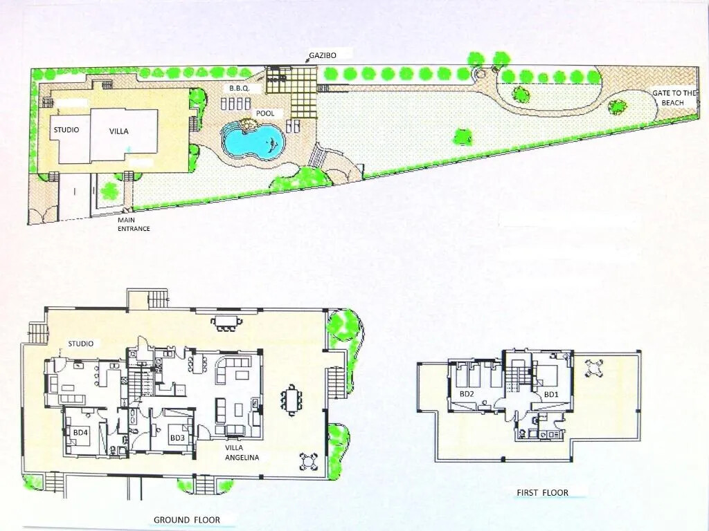
This detached villa sits on a generous 2,040 sqm plot and features 200 sqm of interior living space, complemented by a 70 sqm basement that includes a secure garage. Located just steps from the shore, the villa offers unobstructed views of the Aegean Sea and the freedom of immediate access to the beach.
Spacious Interior with Versatile Layout
Main Villa Features
Beach Front Villa with Pool in Rhodes for sale features a well-appointed main residence with:
- 3 spacious bedrooms
- 2 large bathrooms
- Expansive living room
- Fully equipped kitchen ideal for Mediterranean cooking and entertaining
- First-floor balcony with panoramic views over the bay
The main house delivers the perfect layout for family life or holiday enjoyment.
Independent Apartment
An additional fully self-contained apartment includes:
- Living room
- Kitchen
- Bathroom
- Bedroom
This apartment offers privacy for guests or extended family, or serves as an excellent rental opportunity.
Outdoor Living at Its Best
Pool and Garden
The property includes a large private swimming pool that adds a luxurious touch to daily living. The beautifully landscaped garden extends all the way to the beach, creating a private oasis for sunbathing, entertaining, or quiet contemplation by the sea.
Sustainability and Comfort
This Beach Front Villa with Pool in Rhodes for sale is thoughtfully equipped with:
- Photovoltaic solar system for energy autonomy
- Private water well
- Sustainable living features for year-round enjoyment
Ideal for Permanent Residence or Investment
Whether you’re looking for a dream holiday home, a permanent beachfront retreat, or a profitable rental property, this villa is the ultimate choice. The strategic location and design make it suitable for all-year living or seasonal rental income.
Property Details
- Living Area: 200 m²
- Basement/Garage: 70 m²
- Plot Size: 2,040 m²
- Bedrooms: 4
- Bathrooms: 5
- Construction Year: 2004
Location Highlights: Lindos Region
Located just 48 km from Rhodes Town and 52 km from Rhodes International Airport, the Lindos area is one of the most desirable destinations on the island. Known for its radiant whitewashed houses and rich history, Lindos is a protected vehicle-free village offering stunning sea views, cultural attractions, and unspoiled beaches.
Surrounding resorts include:
- Vlicha Bay
- Kalathos
- Malona
- Massari
- Haraki
- Pefkos
Invest in a Life by the Sea
Beach Front Villa with Pool in Rhodes for sale offers an unmatched opportunity to enjoy luxurious coastal living on one of Greece’s most picturesque islands. For a private viewing or more information, contact us today.
Guest Review: “Amazing Villa, the photos don’t do it justice”
Frequently Asked Questions
• Transfer Tax: 3%
• Notary Fees: 1%
• Land Registry: 0.5%–0.7%
• Lawyer’s Fee: ~1%





































