For Sale
Reduced to 3,600,000€ 4,500,000€ - Luxury Villas Greece, Super premium villas for sale Greece, Villas for Sale Greece
Cliff Villa with Breathtaking Views in Corfu, Greece
A Luxury Escape on the Ionian Coast
Nestled on a dramatic cliffside along the west coast of Corfu, this exclusive villa offers unparalleled luxury and breathtaking panoramic views of the Ionian Sea. Situated on a vast 5,000 sqm plot, this brand-new property epitomizes contemporary elegance, privacy, and seamless integration with the natural beauty of the island.
Exceptional Design and Layout
Spanning three meticulously designed levels, this magnificent villa boasts a total living space of 327 sqm, featuring five lavish bedrooms and six modern bathrooms. The architectural design ensures that each level offers unobstructed sea views, making every moment in this home a serene experience.
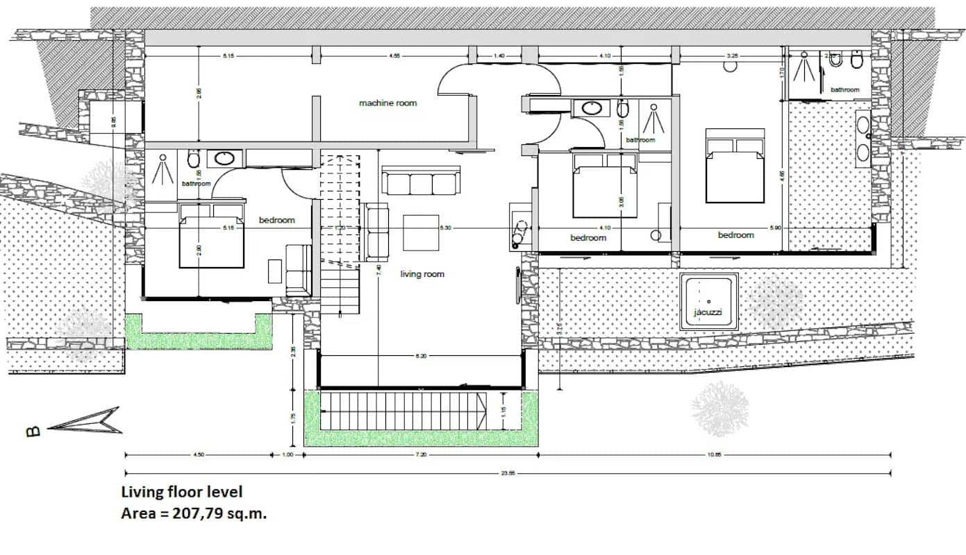
Pool Level
- Private gym with state-of-the-art equipment
- One spacious bedroom with an en-suite bathroom
- 56 sqm pool deck with a striking 77 sqm infinity pool, complete with an overflow edge and built-in Jacuzzi
- Direct access to a private entrance leading to the sea
Living Floor
- Expansive 208 sqm open-plan living area
- Elegant living room featuring a grand fireplace
- Three beautifully appointed bedrooms, each with en-suite bathrooms
- Floor-to-ceiling sliding windows with ultra-minimalist 2.5 cm frames for seamless indoor-outdoor living
Entrance Floor
- Gourmet kitchen with a central island and premium appliances
- Spacious dining area with three adjoining terraces, perfect for al fresco dining with uninterrupted sea views
Additional Luxury Features
Adding to the exclusivity of this property is a hidden 30 sqm guest house, ideally positioned just 20 meters from the sea. This private retreat includes a well-sized bedroom and bathroom, making it perfect for guests seeking an intimate stay.
Smart Home Technology and Sustainability
Designed for modern living, the villa incorporates cutting-edge technology and sustainable solutions, including:
- Smart home automation system
- Advanced security with alarm system and gate cameras
- Electrically controlled curtain rails
- Emergency generator for uninterrupted power supply
- Solar panels for energy efficiency
- Heat pump and underfloor cooling and heating for year-round comfort
- Fan coil units for additional climate control
- Automated irrigation system to maintain lush gardens
- Heated swimming pool with winter cover and an underground 77 m³ water reserve
A Rare Opportunity in Corfu’s Luxury Market
This exquisite property is more than a home—it is a sanctuary that offers an unparalleled lifestyle. Whether as a private retreat or a prime investment opportunity, this villa embodies the essence of luxury living in one of Greece’s most sought-after locations.
Experience the ultimate blend of modern sophistication, supreme comfort, and breathtaking natural beauty with this cliffside masterpiece in Corfu.
Cliff Villa with amazing views in Corfu Greece for sale, Corfu Luxury Homes, Corfu Island Proeprties.































































